船橋市の中古マンション・新築一戸建て|仲介0円団(ちゅうかいおーえんだん) > (マンション(売買))地域から探す > 船橋市 > 【仲介手数料無料】ライオンズマンション習志野台壱番館 > 物件詳細
仲介手数料ゼロと、初期費用軽減につながります!ご好評の物件で、快適な生活をおくりましょう!住環境を見直しませんか!暮らしの中でも、住居は充実した生活を送るための大きな役割を担っています!不動産を探すなら、当社にお任せください(#^^#)
仲介手数料無料でのご購入は仲介0円団へ!
| 所在階 | 価格 | 管理費 | 間取り | 専有面積 | 詳細 | 検討リスト |
|---|---|---|---|---|---|---|
| 6 | 2,998万円 | 13,000円 | 3LDK | 75.06㎡ | 詳細を見る | 追加する |











(※元利均等方式 金利5.00%まで ※返済年数5~50年まで入力できます)
(※ボーナスは年2回で計算しています。1000万円まで入力できます)
(※物件購入時、その他諸費用が発生する場合がございます)
| 所在地 | 千葉県船橋市習志野台4丁目33-1 | ||
|---|---|---|---|
| 交通 | |||
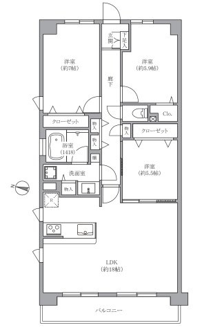
| 間取り/詳細 | 3LDK | ||
| 専有面積/バルコニー面積 | 80.06㎡/10.92㎡ | ルーフバルコニー面積/テラス面積/専用庭面積 | -/-/- |
| 価格 | 3,499万円 | ||
| 管理費 | 13,800円 | ||
| 修繕積立金 | 16,170円 | 修繕積立基金 | - |
| 権利金 | - | 駐車場/月額料金 | -/- |
| 土地の敷金/保証金 | -/- | 借地料/借地期間 | -/- |
| 土地権利 | 所有権 | 国土法届出要否 | - |
| 用途地域 | 第一種中高層住居専用 | 地勢 | - |
| 種別/構造 | 中古マンション/鉄筋コンクリート | 向き | - |
| 築年月(築年数) | 2000年 7月 (築25年) | ||
| 所在階/階建 | 4階/8階建 | 棟総戸数/販売戸数 | 75戸/- |
| 管理組合有無 | 有 | 管理形態 | 管理会社に全部委託 |
| 管理員の勤務形態 | 日勤 | 管理会社 | - |
| 取引態様 | 仲介 | 現況 | 空家 |
| 引渡し | 即時 | 建築確認番号 | - |
| 物件番号 | 94373854 | 取引条件の有効期限 | 2026年01月19日 |
| 設備条件 |
|
||
| 備考 |
掲載していない物件も[仲介手数料無料]もしくは[仲介手数料半額]にてご案内させていただきます。 SUUMO・HOMES・アットホーム等で、気になる物件がございましたら、ぜひお問合せ下さい。 |
||
| 取扱会社 |
|
||
| QRコード |
このQRコードを読み取ることで、スマホでも物件情報を確認できます。 |
||
※地図上に表示される物件の位置は付近住所に所在することを表すものであり、実際の物件所在地とは異なる場合がございます。
【仲介手数料無料】ライオンズマンション習志野台壱番館に関するこだわり条件から探す
船橋市の町名から探す
船橋市にある駅から探す